Meadow View Park

£775,000

  • 5
  • 3
  • 1

A stunning detached chalet-style home, Plot 38 Meadow View Park, situated in the highly sought-after development. Designed with modern living in mind, this exceptional new build offers futureproof features alongside spacious and versatile accommodati...

Entrance Hall

Double glazed door giving access. Built in under stairs storage cupboard. Staircase to the first floor landing. Door to:

Cloakroom/Shower Room

Comprising a shower enclosure, handbasin and WC. Double glazed window to the front elevation.

Living Dining Room

Double doors accessed from the Entrance Hall. Double glazed bifold doors opening to the patio and garden. Dual aspect double glazed windows to side and front elevations. Opening to:

Kitchen Breakfast Room

Comprising a range of fitted units and peninsula breakfast bar. Integral appliances included. Double glazed window to the rear elevation overlooking the garden.

Utility Room + Plant Room

A range of fitted units with sink and drainer inset. Door to the Plant Room and door to:

Bedroom 4

Window to front elevation and door leading to Cloak/Shower Room.

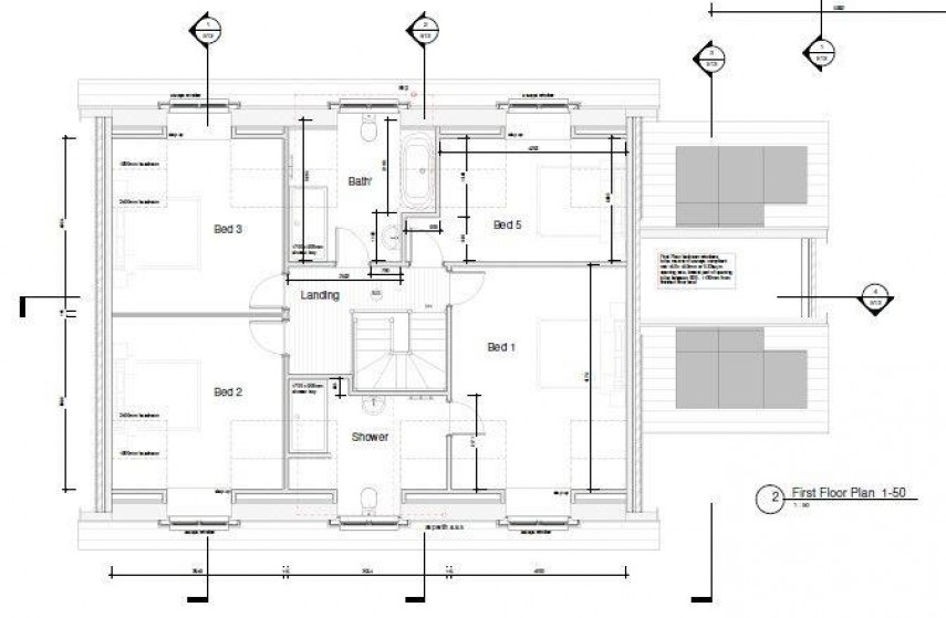
First Floor Landing

Door to:

Bedroom 1

Dual aspect double glazed windows to front and rear elevations. Door to:

Ensuite

Comprising a shower enclosure, handbasin and WC. Double glazed window to the front elevation.

Bedroom 2

Double glazed window to the front elevation.

Bedroom 3

Double glazed window to the rear elevation overlooking the garden.

Bedroom 5

Window to the rear elevation overlooking the garden.

Family Bathroom

Comprising a bath, shower enclosure, handbasin and WC. Double glazed window to the rear elevation.

Outside Areas

Driveway parking for up to 4 cars. 
Enclosed rear garden.

Garage

Door to the rear giving access to the garden.

Disclaimer

Our particulars give a fair overview of the property, however, should you have any points of concern or query please don’t hesitate to contact Elliott Lincoln direct so that we can clarify. Prospective purchasers are always advised to commission a full inspection of the property before proceeding to exchange of contracts. These particulars are believed to be correct and have been verified by or on behalf of our vendor. Interested parties should satisfy themselves as to their accuracy and as to any other matter regarding the property such as its location, proximity to other features or facilities which are of specific importance to them. Distances and areas are only approximate and unless otherwise stated fixtures contents and fittings are not included in the sale. In addition, appliances and services have not been tested unless otherwise stated.

  • Stamp duty paid (conditions apply) - offer ends 31st March 2026
  • Home Office Potential Bedroom Five offers stunning garden views.
  • Master Bedroom with Ensuite Luxury and comfort combined.
  • Five Bedrooms Including a ground-floor double bedroom with ensuite.
  • Utility Room and Plant Room Practical spaces for laundry and systems.
  • Open-Plan Lounge/Dining/Kitchen Ideal for entertaining with bifold doors to the garden.
  • Underfloor Heating Throughout Warm and comfortable
  • Solar Panels and Battery Storage - Reduced energy bills and a sustainable lifestyle
  • Air Source Heat Pump – Energy-efficient heating system.
  • 201m² of Internal Space + Rainwater Harvesting System.
Floorplan for Meadow View Park Floorplan for Meadow View Park

Similar Properties

Egypt Esplanade
  • 5
  • 3
  • 1
Egypt Esplanade
Available
£199,950
The Chandlers
  • 5
  • 3
  • 1
The Chandlers
Available
£300,000
Meadow View Park
  • 5
  • 3
  • 1
Meadow View Park
SSTC
£475,000

PROPERTY SEARCH